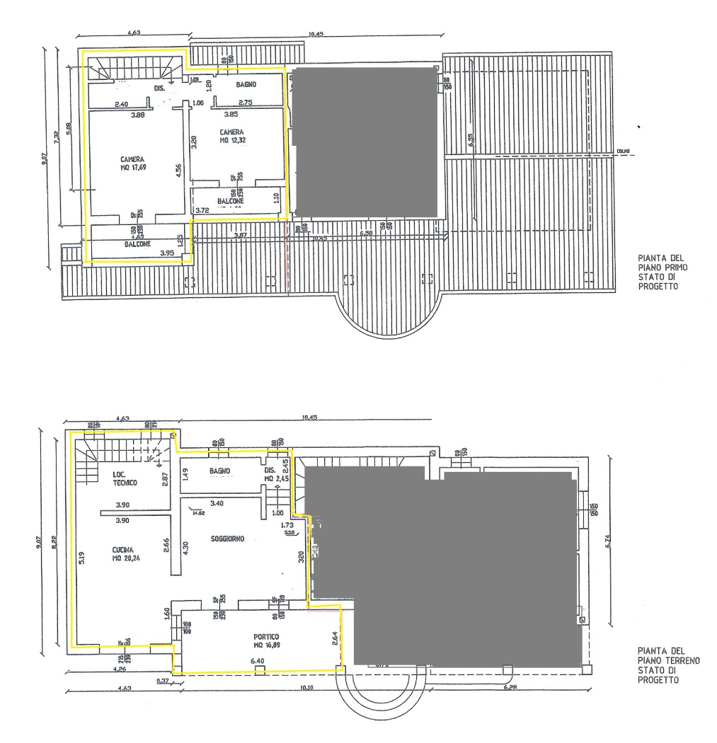
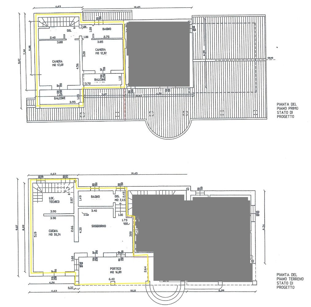
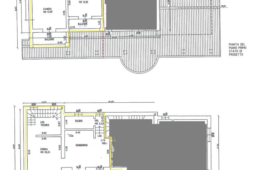
Nelle immediate vicinanze del centro, in zona Ceppine, proponiamo in vendita appezzamento di terreno edificabile residenziale, inserito in un Piano di Lottizzazione ancora da convenzionare, con oneri a carico dei futuri lottizzanti. La volumetria assegnata all’intero lotto è di 2451 mc circa. Di forma rettangolare (118 m di lunghezza e 25 m di larghezza, circa) con il lato più lungo che affaccia su strada, il terreno è ideale per la costruzione di soluzioni indipendenti, ville bifamiliari e/o a schiera. Possibilità di vendita frazionata. La planimetria proposta puramente a scopo illustrativo, da un’idea di un ipotetica divisione e di che cosa sia possibile realizzare. Prezzi a partire da € 50.000 per il LOTTO A. Maggiori informazioni previo appuntamento in ufficio.

—-

Se desideri avere maggiori informazioni o ti piacerebbe visitare l’immobile, non esitare!!!

Chiamaci allo 0331.842330 o 389.0632977

Oppure passa a trovarci, previo appuntamento, nei seguenti orari.

LUN-MAR-GIO-VEN 09.30-12.00/15.30-19.00

MER 09.30-12.00/15.30-18.00

SAB 09.30-12.30/pomeriggio su appuntamento

Caratteristiche

  • Classe energetica: n.d.
  • Condizioni: nd
  • Giardino: 0
  • Riscaldamento